木の舎2
B種LVLを構造材に用いた2階建ての木造建築プロトタイプである。B種LVLは A種と比較し直交方向の層を多く含み、構造用面材として高い性能を持つ材である。
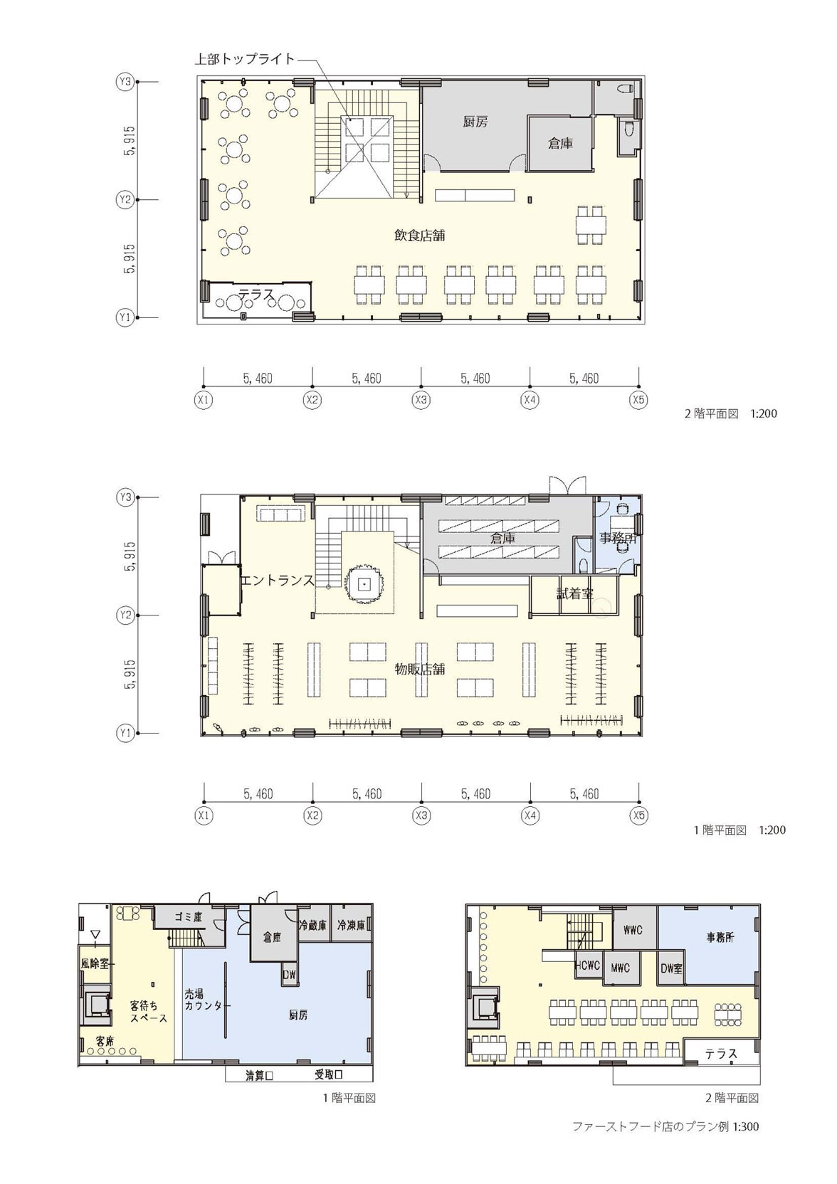
150mm厚のLVL壁柱を2枚重ねとして外周部に配置することで耐力要素を確保し、内部は鉛直力を支える柱のみとすることで、壁のないフレキシブルな空間を作り出している。天井高は 4m近く確保することが可能で、これまで在来木造では実現が難しかった開放的な空間を作り出すことが可能である。また、建物の角部には壁柱を配置せず、床を片持ちで持ち出すことでより内観・外観ともに軽やかさを感じられる構成とした。このスケルトンをベースとし、エントランスや階段の位置を調整することで使用する用途に合わせたバリエーションを生み出すことが可能である。内部の壁は全て構造要素ではない間仕切り壁のため、用途変更にも容易に対応することができる。
本計画は延床面積を500m²とすることにより、準防火地域・法22条区域においてその他建築物で建築可能とし、LVLの壁柱が室内にあらわしとなる木質感の感じられる空間とした。このシステムを用いることにより、これまで鉄骨造で計画されてきた建物に木造の選択肢が生まれ、広く展開されていくことが期待される。
木の舎2
- 建築設計:山代悟+ビルディングランドスケープ
- 構造設計:株式会社ウッドワン
- 主要用途:店舗
- 構造:木造
- 規模:地上2階
- 想定敷地面積:2280.11㎡
- 建築面積:270.00㎡
- 延床面積:471.18㎡










