logo_main_white-1-1logo_main_white-1-1logo_main_white-1-1logo_main_white-1-1
    • Home
    • Mission
    • Architect
      • Interview
    • Projects
    • Company
    • Contact
    • Portfolio on note
    • 日本語
    English
    • Japanese
      Hayasean Tea Room
      2021年8月16日
      Kamijimacho-Yuge Sea Station
      2021年8月15日

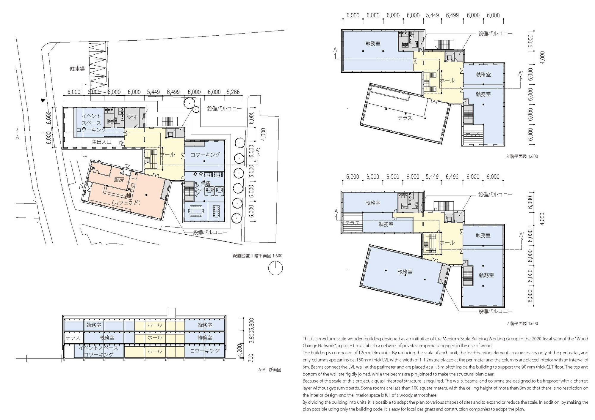
      Wood Change

        Wood Change



        Share

        Related posts

        2024年2月15日

        SIT Techno Plaza Ⅳ


        Read more
        2024年2月9日

        Miyakojima Project


        Read more
        2021年8月24日

        Timber Hut 2


        Read more
        • English
        • 日本語
        © 2025 ビルディングランドスケープ一級建築士事務所|buildingLandscape, ltd., first-class licensed architect office|ビルラン|. All Rights Reserved.
          Scroll Up