早瀬庵
大野の茶室は、新しい木質建材として注目を集めるCLT及びLVLの厚板を用いた都市木造プロジェクトである。構造体の全てに木質の厚板を用いることで現場作業を省力化を図り、厚板木造プレファブ工法のプロトタイプとして計画された。
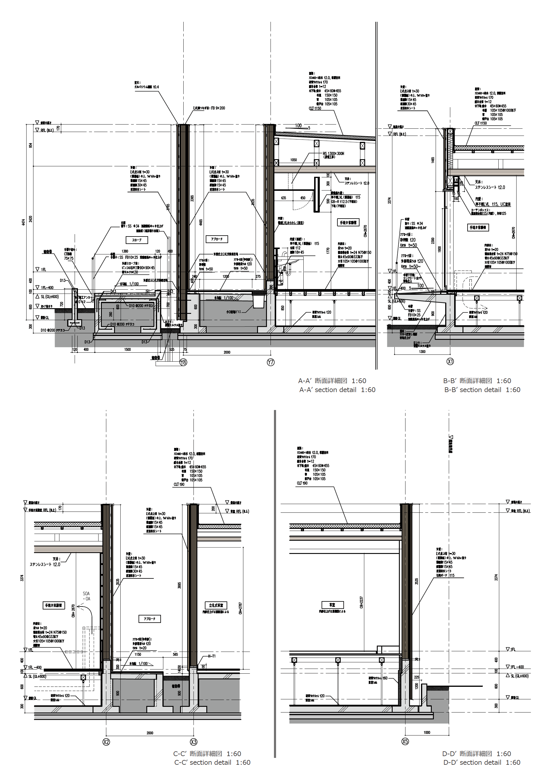
平屋の建物で、もみじ饅頭の手焼き体験が行えるエリアと上田宗箇流の茶室によるエリアが路地を介してつながる構成となっている。内部空間は173m²であるがLVL厚板の壁にぐるりと囲まれた中に茶室やそこに至るシークエンスを作る路地、中庭を取り込むように計画されており、それらを含めると外形としては262m²程度の建物となる。ロードサイドに立地し周囲に建物が立ち並んだ環境にあっても、茶室にふさわしい落ち着いた空間を実 現する平面計画とした。
壁には厚さ150mmのニュージーランド産ラジアタパインLVL厚板を、屋根には桧杉ハイブリッドの国産材CLT厚板を用いている。手焼き体験室では6mのスパンを厚さ150mmのCLTを用いているのに対し、茶室においては厚さ90mmのCLTとビルトTによって構成された鉄骨梁のハイブリッドによる構成とし、10mを超えるスパンを支えるとともに、立礼式茶室においてあらわしになったビルトTによるフレームが空間にアクセントを与えている。
早瀬庵
- 建築設計:山代悟+ビルディングランドスケープ
- 構造設計:桜設計集団構造設計室
- 施工:五洋建設
- 主要用途:茶室・料理教室
- 所在地:広島県廿日市市
- 構造:木造(LVL・CLT厚板工法)
- 規模:地上一階
- 敷地面積:497.16㎡
- 建築面積:173㎡
- 延床面積:173㎡












